There is the benefit of local shops at the nearby May Lane, Drakes Cross Parade and Hollywood Lane, and easy road access to the Alcester Road in Hollywood which in turn provides access to the M42 motorway forming the hub of the midlands motorway network.
Coppice Primary and Woodrush Secondary schools are cited within close proximity on Shawhurst Lane.
The property is within easy access to Shirley, via Truemans Heath Lane, with its comprehensive shopping facilities and Maypole via the Alcester Road.
The nearby village of Wythall has its own railway station offering commuter services between Birmingham and Stratford upon Avon, and local bus services provide access to the City of Birmingham.
Full Details:
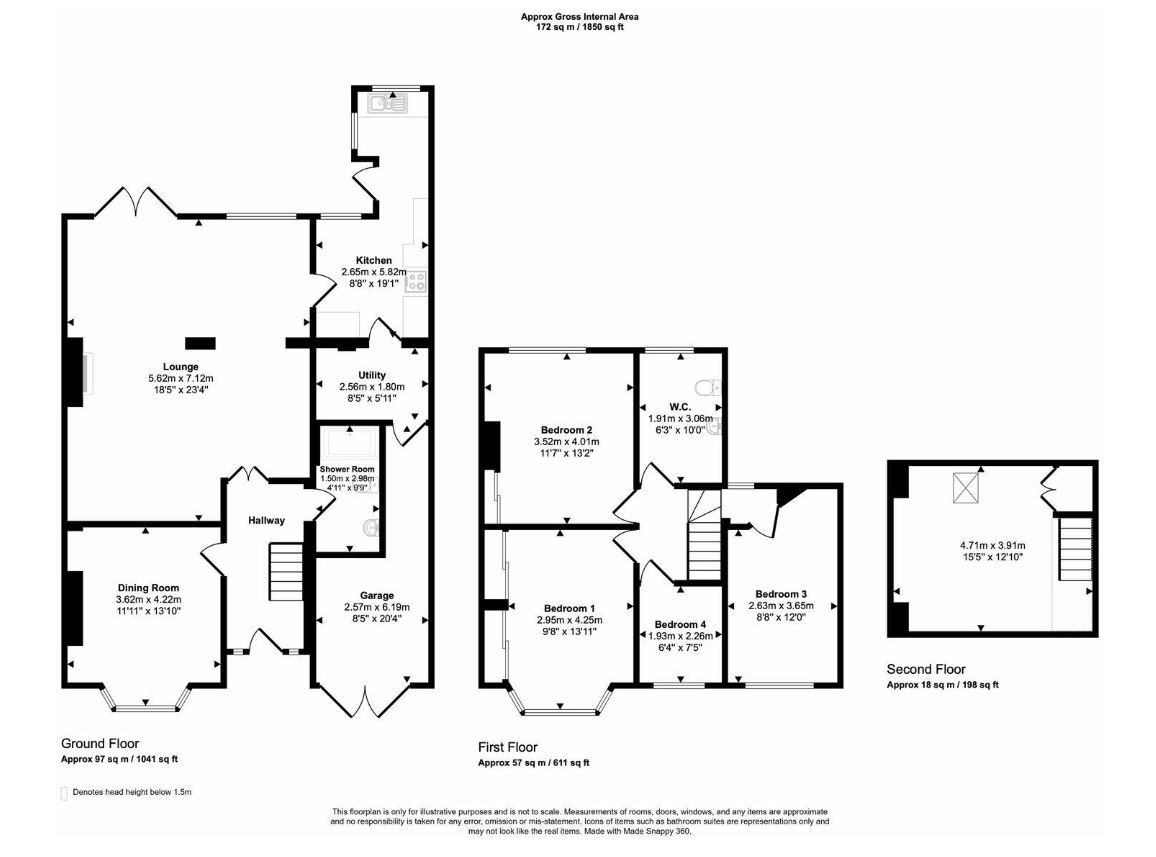
This spacious four-bedroom semi-detached family home is situated on the sought-after Norton Lane in Wythall. Offering ample potential, this property is perfect for those looking to create their ideal home.
The ground floor comprises two reception rooms, a kitchen, a convenient downstairs shower room, and a utility room. Upstairs, the first floor features four bedrooms, three generously sized and a family bathroom. Additionally, the property boasts a loft room on the second floor, offering flexible space for various uses.
Although in need of upgrading throughout, this home offers excellent scope for improvement and modernisation. The property benefits from off-road parking, a garage, and a large rear garden with open views, providing the perfect space for outdoor enjoyment.
Don't miss the opportunity to transform this fantastic property into your dream family home!
Material information:
The information above has been provided by the vendor, agent and GOTO Group and may not be accurate. Please refer to the property’s Legal Pack. (You can download this once you have registered your interest against the property). This pack provides material information which will help you make an informed decision before proceeding. It may not yet include everything you need to know so please make sure you do your own due diligence as well.
FREEHOLD
67
76
This property is offered for sale via the Reservation Fee Service which is a flexible and buyer friendly method of purchase. The purchaser will be given 90 working days in which to complete the transaction from the date the Draft Contract is issued by the sellers solicitor.
By giving a buyer time to exchange contracts on the property, normal residential finance can be arranged. The Buyer’s Premium secures the transaction and takes the property off the market. Fees paid to the Merchant are paid in addition to the purchase price and are considered within calculations for Stamp Duty Land Tax. Further clarification on this must be sought from your legal representative.
The buyer will be required to give the Merchant authority to sign the Reservation Form on their behalf and to confirm acceptance of the Terms and Conditions prior to solicitors being instructed. Copies of the Reservation Form and all Terms and Conditions can be found in the Information Pack which can be downloaded from our website or requested from our Merchant.
If the vendor accepts an offer, the buyer will be required to make payment of a non-refundable Buyer’s Premium of £4,920 including VAT, plus a legal pack charge of £372 including VAT, a total of £5,292. This secures the transaction and takes the property off the market. Any additional fees and charges over and above this will be confirmed within the terms and conditions available on the website.
The Buyer's Premium and legal pack charge are in addition to the final negotiated selling price.
All buyers will be required to verify their identity and provide proof of how the purchase will be funded.
An EPC is broadly like the labels provided with domestic appliances such as refrigerators and washing machines.Its purpose is to record how energy efficient a property is as a building. The certificate will provide a rating of the energy efficiency and carbon emissions of a building from A to G, where A is very efficient, and G is inefficient.The data required to allow the calculation of an EPC includes the age and construction of the building, its insulation and heating method.EPCs are produced using standard methods with standard assumptions about energy usage so that the energy efficiency of one building can easily be compared with another building of the same type.The Energy Performance of Buildings Directive (EPBD) requires that all buildings have an EPC when they are marketed for sale or for let, or when houses are newly built. EPCs are valid for 10 years, or until a newer EPC is prepared.During this period the EPC may be made available to buyers or new tenants.
By setting a proxy bid, the system will automatically bid on your behalf to maintain your position as the highest bidder, up to your proxy bid amount. If you are outbid, you will be notified via email so you can opt to increase your bid if you so choose.
If two of more users place identical bids, the bid that was placed first takes precedence, and this includes proxy bids.
Another bidder placed an automatic proxy bid greater or equal to the bid you have just placed. You will need to bid again to stand a chance of winning.