25 Throxenby Way Clayton, Bradford, West Yorkshire, BD14 6EU

  • Conditional Online Auction Sale
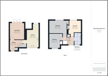
  • Bedrooms: 3

Description

Spacious 3-Bed Terraced Family Home in the Desirable Clayton Area Welcome to your dream family home! Nestled in the popular residential area of Clayton, this 3-bedroom terraced house offers abundant space, comfort, and convenience for your family's needs. With three double bedrooms and a host of desirable features, this property is a true gem. Property Highlights: 1. Generous Family Space: This spacious family house provides ample room for everyone. With three double bedrooms, you won't have to worry about box rooms or cramped spaces. 2. Large Kitchen/Diner: The heart of this home is the large kitchen/diner, which received a modern update in 2022 with newly replaced cupboard doors. It's the perfect space for family meals, entertaining, or simply catching up after a busy day. 3. Expansive Lounge: The lounge is both inviting and roomy, offering a comfortable space to relax. Patio doors lead directly into the back garden, seamlessly connecting indoor and outdoor living. 4. Private Rear Garden: Step outside to discover a large, lawned private garden to the rear of the property. It's an ideal spot for kids to play, gardening enthusiasts to thrive, or simply to enjoy outdoor gatherings and BBQs. 5. Solidly Built Ex-Council House: This home boasts solid construction, a testament to its ex-council heritage, ensuring durability and soundness. 6. Utility and Ground Floor WC: The convenience of a utility room and a ground floor WC adds practicality to daily life, reducing household chores and making life easier for everyone. 7. Close to Amenities: The property is conveniently located near a variety of shops, ensuring that you're never far from everyday essentials. 8. Family-Friendly Location: With a primary school just around the corner, this home is perfect for families with young children. Your kids will have a short and safe walk to school. 9. Cul-de-Sac Peace: Enjoy the tranquility of a cul-de-sac location, where traffic is minimal, and the neighborhood is quiet and family-friendly. This 3-bedroom terraced home in Clayton offers a perfect blend of comfort, convenience, and space for your growing family. From the generously sized bedrooms to the modern kitchen/diner and the private garden, every detail has been considered to make family life enjoyable and stress-free. Don't miss the opportunity to make this house your forever home. Book a viewing today and discover your family's bright future in this wonderful property. Please call or visit GOTO Online Auctions for more information. This property is for sale via Modern Method of Auction. This is a flexible buyer friendly method of purchase. The purchaser will have 56 working days to exchange and complete once the draft contract has been issued by the vendors solicitor. Allowing the additional time to exchange and complete on the property means interested parties can proceed with traditional residential finance. Upon close of a successful auction or if the vendor accepts an offer during the auction, the buyer with be required to put down a non-refundable reservation fee. The fee will be a fixed fee including the VAT - this secures the transaction and takes the property off the market. The buyer will be required to agree to our terms and conditions prior to solicitors being instructed. If you require a copy of these documents, or for further information, please contact the Online Auction team at GOTO Group. Please note this property is subject to an undisclosed Reserve Price which is typically no more than 10% in excess of the Starting Bid. Both the Starting Bid and Reserve Price can be subject to change. Our primary duty of care is to the vendor. Terms and conditions apply to the Modern Method of Auction, which is operated by GOTO Auctions. To book a viewing contact: Strike Upon close of a successful auction or if the vendor accepts an offer during the auction, the buyer will be required to make payment of a non-refundable Buyer’s Premium of 3.6% of the purchase price including VAT and a Legal Pack fee of £354 including VAT (this is subject to a minimum amount of £6600 including VAT and a Legal Pack Fee of £354 including VAT). This secures the transaction and takes the property off the market. The Buyer’s Premium and administration charge are in addition to the final negotiated selling price Tenure: Freehold Council Tax: A

Tenure

freehold

Energy Efficiency Rating - Current

70

Energy Efficiency Rating - Potential

82

Opening Bid and Reserve Price

This Property is subject to an undisclosed Reserve Price which in general will not be 10% more than the Opening Bid. The Reserve Price and Opening Bid can be subject to change. The Online Auction terms and conditions apply.

Comments

This property is offered for sale via Online Auction which is a flexible and buyer friendly method of purchase. The purchaser will not be exchanging contracts on the fall of the virtual hammer, but will be given 56 working days in which to exchange and complete the transaction from the date the Draft Contract is issued by the sellers solicitor.

By giving a buyer time to exchange contracts on the property, normal residential finance can be arranged. The Buyer’s Premium secures the transaction and takes the property off the market. Fees paid to the Auctioneer reserve the property to the buyer during the Reservation Period and are paid in addition to the purchase price and are considered within calculations for Stamp Duty Land Tax. Further clarification on this must be sought from your legal representative.

The buyer will be required to give the Auctioneer authority to sign the Reservation Form on their behalf and to confirm acceptance of the Terms and Conditions prior to solicitors being instructed. Copies of the Reservation Form and all Terms and Conditions can be found in the Information Pack which can be downloaded from our website or requested from our Auctioneer.

Upon close of a successful auction, or if the vendor accepts an offer during the auction, the buyer will be required to make payment of a non-refundable Buyer's Premium of £6,582 including VAT, plus a buyer's administration charge of £372 including VAT, a total of £6,954. This secures the transaction and takes the property off the market. Any additional fees and charges over and above this will be confirmed within the terms and conditions available on the website.

The Buyer's Premium and buyer's administration charge are in addition to the final negotiated selling price.

All buyers will be required to verify their identity and provide proof of how the purchase will be funded.

Buyer's Administration Charge

If the Buyer Information Pack has been produced and provided by GOTO Group any successful purchaser will be required to pay £372 (including VAT) towards the cost of the preparation of the pack. These can then be used by your solicitor to progress the sale.

Buyer Fees

There are no other fees or charges payable to the Auctioneer however, there are other costs to consider such as:

  • You will need a Solicitor to act for you during the conveyancing and your Solicitor will advise you in relation to the associated costs. If you do not have a Solicitor, we can recommend the services of one of our Panel Solicitors who are all selected for their expertise in Auction Transactions. Please call the number below for more information.
  • Stamp Duty Land Tax (SDLT) is applicable if you buy a property or land over a certain price in England, Wales or Northern Ireland. Please click here for more information.

Energy Performance Certificate(EPCs)

An EPC is broadly like the labels provided with domestic appliances such as refrigerators and washing machines.Its purpose is to record how energy efficient a property is as a building. The certificate will provide a rating of the energy efficiency and carbon emissions of a building from A to G, where A is very efficient, and G is inefficient.The data required to allow the calculation of an EPC includes the age and construction of the building, its insulation and heating method.EPCs are produced using standard methods with standard assumptions about energy usage so that the energy efficiency of one building can easily be compared with another building of the same type.The Energy Performance of Buildings Directive (EPBD) requires that all buildings have an EPC when they are marketed for sale or for let, or when houses are newly built. EPCs are valid for 10 years, or until a newer EPC is prepared.During this period the EPC may be made available to buyers or new tenants.

* Generally speaking Guide Prices are provided as an indication of each seller's minimum expectation, i.e. 'The Reserve'. They are not necessarily figures which a property will sell for and may change at any time prior to the auction. Virtually every property will be offered subject to a Reserve (a figure below which the Auctioneer cannot sell the property during the auction) which we expect will be set within the Guide Range or no more than 10% above a single figure Guide.

Loading the bidding panel...

Office Contact

Additional Documents

Online Auction Buying Guide

Related Documents

Agreement Documents

Share