47 Chiltern Avenue, Castleford, West Yorkshire, WF10 5PR

  • Conditional Online Auction Sale

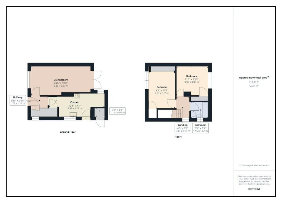
Description

Welcome to 47 Chiltern Avenue, Castleford, West Yorkshire, WF10 5PR - a fantastic 2-bedroom Semi-detached home brimming with potential, making it an ideal choice for both first-time buyers and savvy investors seeking a great investment opportunity.

Key Features:

Two Bedrooms: This spacious property boasts two well-proportioned bedrooms, providing ample space for a growing family or accommodating guests.

Generous Living Spaces: The open-concept living and dining area is the heart of the home, offering flexibility for various design possibilities.

Kitchen: The kitchen needs some modernisation but is a good size and as room to be extend

Potential for Personalization: With a blank canvas waiting for your creative touch, you can customize this home to your liking, making it truly your own.

Rear Garden: The property includes a pleasant rear garden, perfect for gardening, outdoor dining, or creating a serene relaxation spot.

Convenient Location: Situated in Castleford, West Yorkshire, you're in close proximity to local amenities, schools, and transport links, ensuring you're always well-connected.

Investment Opportunity: For investors, this property represents a prime opportunity to expand your portfolio, with the potential for attractive rental yields.

Excellent Growth Potential: Castleford is an up-and-coming area with strong growth prospects, making this property an even more appealing investment choice.

Property Overview:

47 Chiltern Avenue is a versatile home, perfectly suited for both those looking to take their first step on the property ladder and investors seeking a lucrative addition to their portfolio. With two well-proportioned bedrooms, it can comfortably accommodate a family, or guest room

The open-concept living and dining area is the ideal space for spending quality time with family and friends, while the modern kitchen provides all the essentials for culinary enthusiasts.

What truly sets this property apart is the potential for personalization. You have a canvas upon which you can create the home of your dreams, tailoring it to your unique style and needs.

Step outside into the rear garden, where you can indulge in gardening, enjoy al fresco dining, or simply unwind in your own green oasis.

The location is superb, with local amenities, schools, and transport links within easy reach, ensuring your daily needs are met.

For investors, the excellent growth potential of Castleford makes this a smart investment choice, with the prospect of attractive rental returns in the future.

Don't miss this opportunity to make 47 Chiltern Avenue your own. Contact us today to arrange a viewing and take the first step towards turning this property into your dream home or investment success.
Tenure: Freehold
Council Tax: A

Tenure

FREEHOLD

Energy Efficiency Rating - Current

69

Energy Efficiency Rating - Potential

87

Opening Bid and Reserve Price

This Property is subject to an undisclosed Reserve Price which in general will not be 10% more than the Opening Bid. The Reserve Price and Opening Bid can be subject to change. The Online Auction terms and conditions apply.

Comments

This property is offered for sale via Online Auction which is a flexible and buyer friendly method of purchase. The purchaser will not be exchanging contracts on the fall of the virtual hammer, but will be given 56 working days in which to exchange and complete the transaction from the date the Draft Contract is issued by the sellers solicitor.

By giving a buyer time to exchange contracts on the property, normal residential finance can be arranged. The Buyer’s Premium secures the transaction and takes the property off the market. Fees paid to the Auctioneer reserve the property to the buyer during the Reservation Period and are paid in addition to the purchase price and are considered within calculations for Stamp Duty Land Tax. Further clarification on this must be sought from your legal representative.

The buyer will be required to give the Auctioneer authority to sign the Reservation Form on their behalf and to confirm acceptance of the Terms and Conditions prior to solicitors being instructed. Copies of the Reservation Form and all Terms and Conditions can be found in the Information Pack which can be downloaded from our website or requested from our Auctioneer.

Upon close of a successful auction, or if the vendor accepts an offer during the auction, the buyer will be required to make payment of a non-refundable Buyer's Premium of £4,628 including VAT, plus a buyer's administration charge of £372 including VAT, a total of £5,000. This secures the transaction and takes the property off the market. Any additional fees and charges over and above this will be confirmed within the terms and conditions available on the website.

The Buyer's Premium and buyer's administration charge are in addition to the final negotiated selling price.

All buyers will be required to verify their identity and provide proof of how the purchase will be funded.

Buyer's Administration Charge

If the Buyer Information Pack has been produced and provided by GOTO Group any successful purchaser will be required to pay £372 (including VAT) towards the cost of the preparation of the pack. These can then be used by your solicitor to progress the sale.

Buyer Fees

There are no other fees or charges payable to the Auctioneer however, there are other costs to consider such as:

  • You will need a Solicitor to act for you during the conveyancing and your Solicitor will advise you in relation to the associated costs. If you do not have a Solicitor, we can recommend the services of one of our Panel Solicitors who are all selected for their expertise in Auction Transactions. Please call the number below for more information.
  • Stamp Duty Land Tax (SDLT) is applicable if you buy a property or land over a certain price in England, Wales or Northern Ireland. Please click here for more information.

Energy Performance Certificate(EPCs)

An EPC is broadly like the labels provided with domestic appliances such as refrigerators and washing machines.Its purpose is to record how energy efficient a property is as a building. The certificate will provide a rating of the energy efficiency and carbon emissions of a building from A to G, where A is very efficient, and G is inefficient.The data required to allow the calculation of an EPC includes the age and construction of the building, its insulation and heating method.EPCs are produced using standard methods with standard assumptions about energy usage so that the energy efficiency of one building can easily be compared with another building of the same type.The Energy Performance of Buildings Directive (EPBD) requires that all buildings have an EPC when they are marketed for sale or for let, or when houses are newly built. EPCs are valid for 10 years, or until a newer EPC is prepared.During this period the EPC may be made available to buyers or new tenants.

* Generally speaking Guide Prices are provided as an indication of each seller's minimum expectation, i.e. 'The Reserve'. They are not necessarily figures which a property will sell for and may change at any time prior to the auction. Virtually every property will be offered subject to a Reserve (a figure below which the Auctioneer cannot sell the property during the auction) which we expect will be set within the Guide Range or no more than 10% above a single figure Guide.

Loading the bidding panel...

Office Contact

Additional Documents

Online Auction Buying Guide

Related Documents

Agreement Documents

Share