3 Beaconsfield Road Clayton, Bradford, West Yorkshire, BD14 6LQ

  • Conditional Online Auction Sale
  • Bedrooms: 3

Description

Strike is pleased to present this property in Bradford.

Welcome to Beaconsfield Road, Bradford, BD14 6LQ, a stunning property that offers an exceptional living experience. Whether you're looking for a spacious family home or a fantastic investment opportunity, this property has you covered:

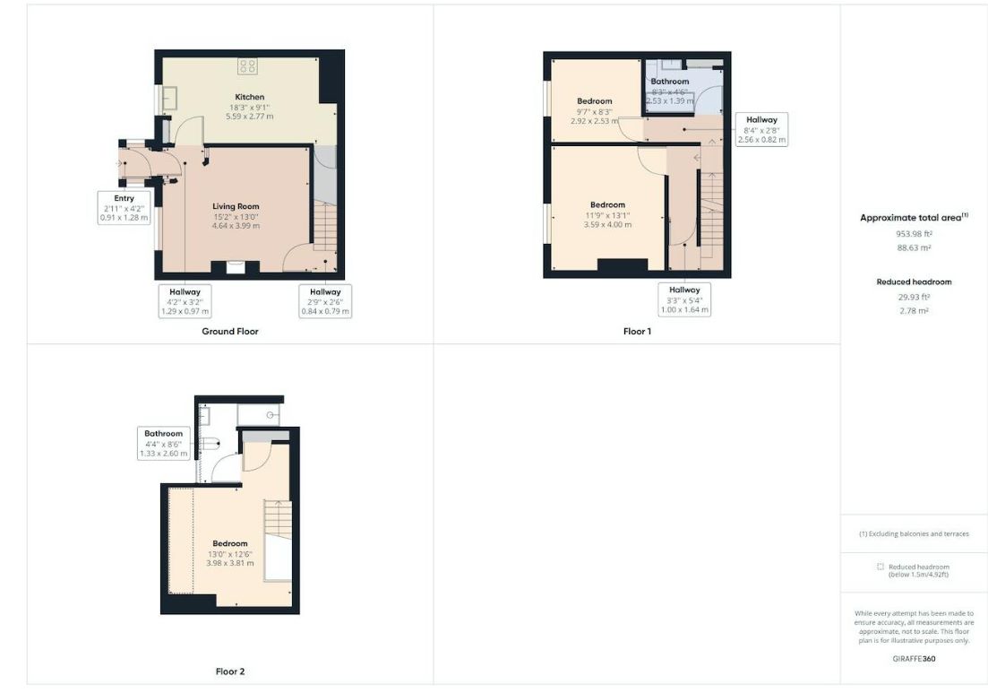
With three generously sized double bedrooms, this home provides ample space for your family, guests, or potential tenants.

One of the bedrooms boasts its own en suite, adding a touch of luxury and convenience to your daily routine.

The property includes a front garden, offering outdoor space for relaxation or gardening.

The property features modern and tasteful decor, providing a fresh and inviting atmosphere.

While this home was previously used as a rental property, it has been maintained to a high standard, ensuring its readiness for new owners or tenants.

With its excellent condition and multiple bedrooms, this property has great potential as an investment, offering a good yield for landlords.

The property features two bathrooms, providing additional convenience for a family or multiple occupants.

This property at Beaconsfield Road, Bradford, BD14 6LQ, offers spacious and modern living with its three double bedrooms, one with an en suite. The tasteful decor and the property's good condition are additional advantages for those looking for a comfortable family home or an attractive investment opportunity. Don't miss the chance to make this property your own or add it to your investment portfolio.

Tenure
Freehold, Offers in Region of £170,000

Build year
1900

Council tax band
A (£1,238.00 Per Year)

Heating
Gas

Shared Ownership
No

Parking
On street

Chain Position
No chain

Tenure

freehold

Energy Efficiency Rating - Current

64

Energy Efficiency Rating - Potential

82

Opening Bid and Reserve Price

This Property is subject to an undisclosed Reserve Price which in general will not be 10% more than the Opening Bid. The Reserve Price and Opening Bid can be subject to change. The Online Auction terms and conditions apply.

Comments

This property is offered for sale via Online Auction which is a flexible and buyer friendly method of purchase. The purchaser will not be exchanging contracts on the fall of the virtual hammer, but will be given 56 working days in which to exchange and complete the transaction from the date the Draft Contract is issued by the sellers solicitor.

By giving a buyer time to exchange contracts on the property, normal residential finance can be arranged. The Buyer’s Premium secures the transaction and takes the property off the market. Fees paid to the Auctioneer reserve the property to the buyer during the Reservation Period and are paid in addition to the purchase price and are considered within calculations for Stamp Duty Land Tax. Further clarification on this must be sought from your legal representative.

The buyer will be required to give the Auctioneer authority to sign the Reservation Form on their behalf and to confirm acceptance of the Terms and Conditions prior to solicitors being instructed. Copies of the Reservation Form and all Terms and Conditions can be found in the Information Pack which can be downloaded from our website or requested from our Auctioneer.

Upon close of a successful auction, or if the vendor accepts an offer during the auction, the buyer will be required to make payment of a non-refundable Buyer's Premium of £128 including VAT, plus a buyer's administration charge of £372 including VAT, a total of £500. This secures the transaction and takes the property off the market. Any additional fees and charges over and above this will be confirmed within the terms and conditions available on the website.

The Buyer's Premium and buyer's administration charge are in addition to the final negotiated selling price.

All buyers will be required to verify their identity and provide proof of how the purchase will be funded.

Buyer's Administration Charge

If the Buyer Information Pack has been produced and provided by GOTO Group any successful purchaser will be required to pay £372 (including VAT) towards the cost of the preparation of the pack. These can then be used by your solicitor to progress the sale.

Buyer Fees

There are no other fees or charges payable to the Auctioneer however, there are other costs to consider such as:

  • You will need a Solicitor to act for you during the conveyancing and your Solicitor will advise you in relation to the associated costs. If you do not have a Solicitor, we can recommend the services of one of our Panel Solicitors who are all selected for their expertise in Auction Transactions. Please call the number below for more information.
  • Stamp Duty Land Tax (SDLT) is applicable if you buy a property or land over a certain price in England, Wales or Northern Ireland. Please click here for more information.

Energy Performance Certificate(EPCs)

An EPC is broadly like the labels provided with domestic appliances such as refrigerators and washing machines.Its purpose is to record how energy efficient a property is as a building. The certificate will provide a rating of the energy efficiency and carbon emissions of a building from A to G, where A is very efficient, and G is inefficient.The data required to allow the calculation of an EPC includes the age and construction of the building, its insulation and heating method.EPCs are produced using standard methods with standard assumptions about energy usage so that the energy efficiency of one building can easily be compared with another building of the same type.The Energy Performance of Buildings Directive (EPBD) requires that all buildings have an EPC when they are marketed for sale or for let, or when houses are newly built. EPCs are valid for 10 years, or until a newer EPC is prepared.During this period the EPC may be made available to buyers or new tenants.

* Generally speaking Guide Prices are provided as an indication of each seller's minimum expectation, i.e. 'The Reserve'. They are not necessarily figures which a property will sell for and may change at any time prior to the auction. Virtually every property will be offered subject to a Reserve (a figure below which the Auctioneer cannot sell the property during the auction) which we expect will be set within the Guide Range or no more than 10% above a single figure Guide.

Loading the bidding panel...

Office Contact

Additional Documents

Online Auction Buying Guide

Related Documents

Agreement Documents

Share