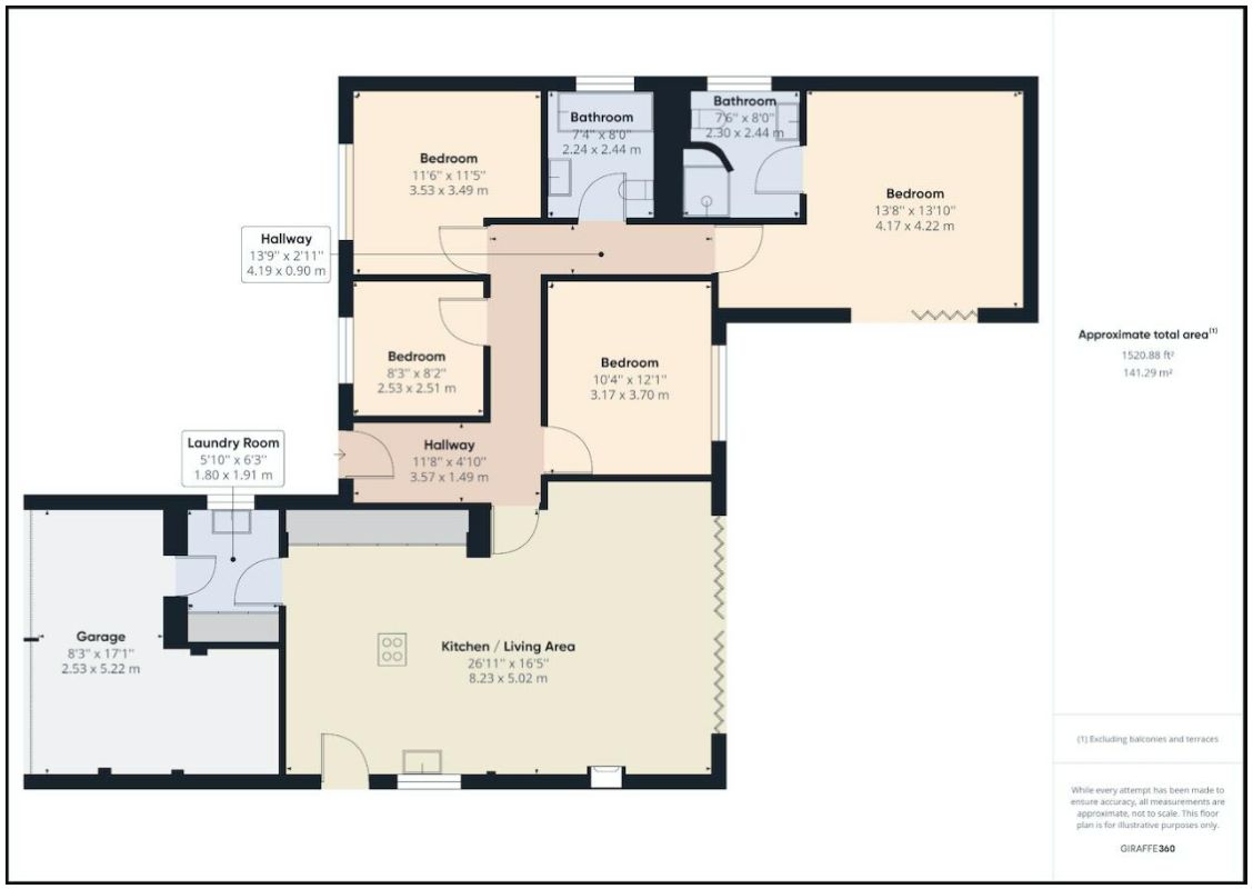
Welcome to this stunning 4-bedroom detached bungalow in the picturesque area of Netherton, Wakefield. This property is an embodiment of beauty and modernity throughout.
As you step inside, you'll be greeted by an open-plan living and kitchen area that seamlessly blends style and functionality. The integrated appliances, kitchen island, and underfloor heating create a space that is not only aesthetically pleasing but also practical for everyday living. Bi-fold doors provide a natural connection to the outdoors, allowing you to enjoy the surrounding beauty from the comfort of your home.
This bungalow features a modern family bathroom and en-suite showers adjoining the master bedroom, ensuring that your personal comfort is paramount. The attention to detail in the design is evident in every corner of the property.
The double garage and private driveway provide ample parking and storage space, offering convenience and security for your vehicles and belongings.
The property is surrounded by beautifully landscaped gardens, creating a serene and inviting outdoor space. Whether you have a green thumb or simply enjoy spending time in the garden, this space offers endless opportunities for relaxation and enjoyment.
Nestled in the charming area of Netherton, this bungalow offers the perfect combination of modern luxury and natural beauty. It's a place where you can create lasting memories and live a life of comfort and elegance. Don't miss the opportunity to make this beautiful property your new home.
Tenure: Freehold
Council Tax: E
freehold
This property is offered for sale via the Reservation Fee Service which is a flexible and buyer friendly method of purchase. The purchaser will be given 90 working days in which to complete the transaction from the date the Draft Contract is issued by the sellers solicitor.
By giving a buyer time to exchange contracts on the property, normal residential finance can be arranged. The Buyer’s Premium secures the transaction and takes the property off the market. Fees paid to the Merchant are paid in addition to the purchase price and are considered within calculations for Stamp Duty Land Tax. Further clarification on this must be sought from your legal representative.
The buyer will be required to give the Merchant authority to sign the Reservation Form on their behalf and to confirm acceptance of the Terms and Conditions prior to solicitors being instructed. Copies of the Reservation Form and all Terms and Conditions can be found in the Information Pack which can be downloaded from our website or requested from our Merchant.
If the vendor accepts an offer, the buyer will be required to make payment of a non-refundable Buyer’s Premium of £-272 including VAT, plus a legal pack charge of £372 including VAT, a total of £100. This secures the transaction and takes the property off the market. Any additional fees and charges over and above this will be confirmed within the terms and conditions available on the website.
The Buyer's Premium and legal pack charge are in addition to the final negotiated selling price.
All buyers will be required to verify their identity and provide proof of how the purchase will be funded.
An EPC is broadly like the labels provided with domestic appliances such as refrigerators and washing machines.Its purpose is to record how energy efficient a property is as a building. The certificate will provide a rating of the energy efficiency and carbon emissions of a building from A to G, where A is very efficient, and G is inefficient.The data required to allow the calculation of an EPC includes the age and construction of the building, its insulation and heating method.EPCs are produced using standard methods with standard assumptions about energy usage so that the energy efficiency of one building can easily be compared with another building of the same type.The Energy Performance of Buildings Directive (EPBD) requires that all buildings have an EPC when they are marketed for sale or for let, or when houses are newly built. EPCs are valid for 10 years, or until a newer EPC is prepared.During this period the EPC may be made available to buyers or new tenants.
By setting a proxy bid, the system will automatically bid on your behalf to maintain your position as the highest bidder, up to your proxy bid amount. If you are outbid, you will be notified via email so you can opt to increase your bid if you so choose.
If two of more users place identical bids, the bid that was placed first takes precedence, and this includes proxy bids.
Another bidder placed an automatic proxy bid greater or equal to the bid you have just placed. You will need to bid again to stand a chance of winning.