Located on a well appointed generous plot within L25, this three bed semi offers fantastic scope to further enhance and has no chain delay!
Situated in the heart of the highly sought after Woolton Village, Whitegates Woolton are delighted to offer to the market this three bed semi-detached suited to family occupation.
This property boasts many attractive features, as it falls in the catchment area of reputable schooling, has many local amenities on the doorstep and is well situated to access multiple commuter links to Liverpool City Centre and beyond. A short walk from the property and you are in the centre of the picturesque village, which is steeped in history and charm and has an abundance of shops, pubs, wine bars and restaurants. There is plenty of green spaces to enjoy, with Camp Hill, Calderstones Park and Sefton Park just a stones throw away, as well as a handful of prestigious golf courses nearby.
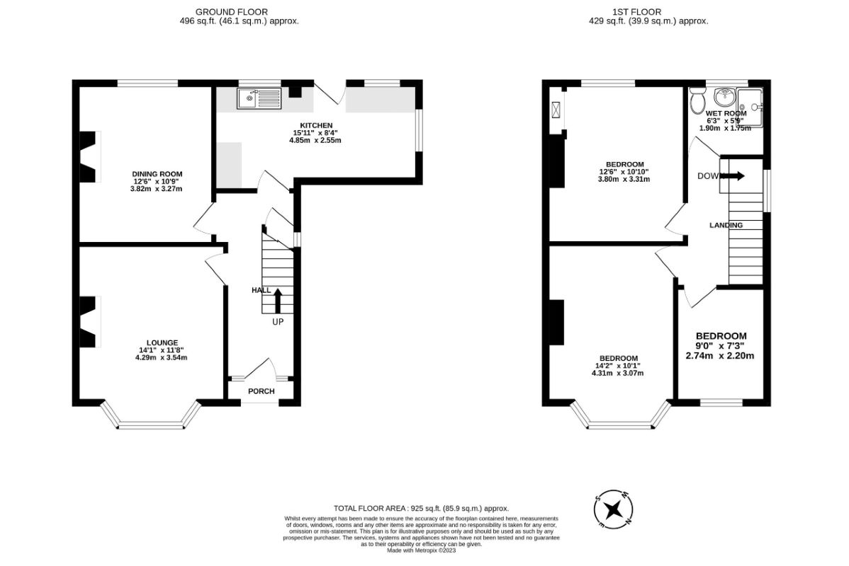
The accommodation briefly comprises of:- entrance hall, lounge, dining room and kitchen/breakfast room all to the ground floor. Whilst to the first floor, there are three bedrooms and a family bathroom. The garden to the rear is a substantial size, offering well established shrub and flower borders as well as an patio and lawn. To the front of the property is a private driveway and lawned area.
This lovely home has so much to offer and is not to be missed, book your viewing via our Woolton Branch today!
Lease Information - Freehold.
Council Tax Band - C.
Freehold
61
82
This property is offered for sale via the Reservation Fee Service which is a flexible and buyer friendly method of purchase. The purchaser will be given 90 working days in which to complete the transaction from the date the Draft Contract is issued by the sellers solicitor.
By giving a buyer time to exchange contracts on the property, normal residential finance can be arranged. The Buyer’s Premium secures the transaction and takes the property off the market. Fees paid to the Merchant are paid in addition to the purchase price and are considered within calculations for Stamp Duty Land Tax. Further clarification on this must be sought from your legal representative.
The buyer will be required to give the Merchant authority to sign the Reservation Form on their behalf and to confirm acceptance of the Terms and Conditions prior to solicitors being instructed. Copies of the Reservation Form and all Terms and Conditions can be found in the Information Pack which can be downloaded from our website or requested from our Merchant.
If the vendor accepts an offer, the buyer will be required to make payment of a non-refundable Buyer’s Premium of £8,382 including VAT, plus a legal pack charge of £372 including VAT, a total of £8,754. This secures the transaction and takes the property off the market. Any additional fees and charges over and above this will be confirmed within the terms and conditions available on the website.
The Buyer's Premium and legal pack charge are in addition to the final negotiated selling price.
All buyers will be required to verify their identity and provide proof of how the purchase will be funded.
An EPC is broadly like the labels provided with domestic appliances such as refrigerators and washing machines.Its purpose is to record how energy efficient a property is as a building. The certificate will provide a rating of the energy efficiency and carbon emissions of a building from A to G, where A is very efficient, and G is inefficient.The data required to allow the calculation of an EPC includes the age and construction of the building, its insulation and heating method.EPCs are produced using standard methods with standard assumptions about energy usage so that the energy efficiency of one building can easily be compared with another building of the same type.The Energy Performance of Buildings Directive (EPBD) requires that all buildings have an EPC when they are marketed for sale or for let, or when houses are newly built. EPCs are valid for 10 years, or until a newer EPC is prepared.During this period the EPC may be made available to buyers or new tenants.
By setting a proxy bid, the system will automatically bid on your behalf to maintain your position as the highest bidder, up to your proxy bid amount. If you are outbid, you will be notified via email so you can opt to increase your bid if you so choose.
If two of more users place identical bids, the bid that was placed first takes precedence, and this includes proxy bids.
Another bidder placed an automatic proxy bid greater or equal to the bid you have just placed. You will need to bid again to stand a chance of winning.