65a Sidbury, Worcester, Worcestershire, WR1 2HU

  • Conditional Online Auction Sale
  • Bedrooms: 2

Description

NO CHAIN, CASH BUYERS ONLY
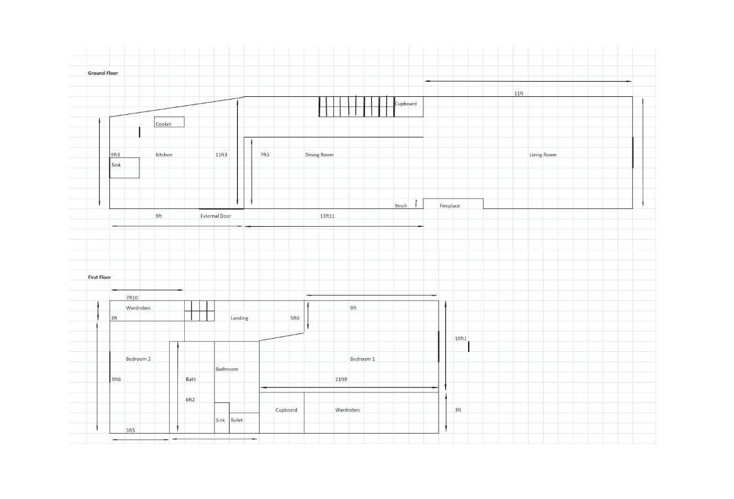
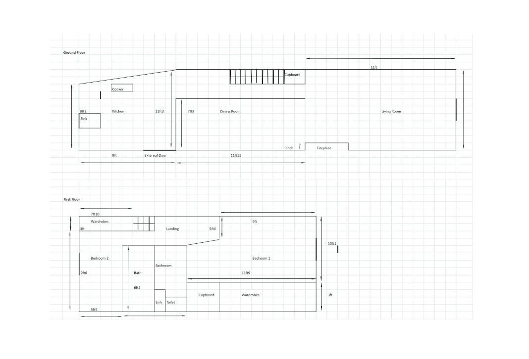
This unique beautifully presented Grade II listed 2 bedroom split level apartment close to the heart of Worcester City Centre, is perfect for first-time buyers or those looking for a solid investment opportunity.

The apartment comprises of 2 double bedrooms both with fitted wardrobes, a modern reception room, dining room and a recently renovated modern kitchen with integrated appliances. It also benefits from a new Bosch combi boiler providing gas central heating throughout and double glazed windows to the rear, with secondary glazed windows to the front of the premises.

The bathroom has also undergone renovation with an attractive modern suite including waterfall shower. The property also has a loft and under stairs cupboard providing valuable storage space.

Both the landing and bathroom have skylights providing an abundance of natural light, and the front windows benefit from views of the historic Worcester Cathedral.
Being centrally located the apartment is close to local amenities and excellent transport links including within easy reach of the M5 motorway. It is within walking distance to the bustling High Street, vibrant bars and restaurants. It is a 5 minutes walk to Diglis basin and Riverside walks. Fort Royal Park is just around the corner, and both Foregate Street and Shrub Hill train stations are less than a 10 minute walk away. A Worcester City Council season ticket can be purchased for £720 per year for King Street Car Park directly opposite (less than £2 a day)or other local car parks, or there is free on street parking within 5 minutes walk.

Tenure

LEASEHOLD

Energy Efficiency Rating - Current

70

Energy Efficiency Rating - Potential

78

Opening Bid and Reserve Price

This Property is subject to an undisclosed Reserve Price which in general will not be 10% more than the Opening Bid. The Reserve Price and Opening Bid can be subject to change. The Online Auction terms and conditions apply.

Comments

This property is offered for sale via Online Auction which is a flexible and buyer friendly method of purchase. The purchaser will not be exchanging contracts on the fall of the virtual hammer, but will be given 56 working days in which to exchange and complete the transaction from the date the Draft Contract is issued by the sellers solicitor.

By giving a buyer time to exchange contracts on the property, normal residential finance can be arranged. The Buyer’s Premium secures the transaction and takes the property off the market. Fees paid to the Auctioneer reserve the property to the buyer during the Reservation Period and are paid in addition to the purchase price and are considered within calculations for Stamp Duty Land Tax. Further clarification on this must be sought from your legal representative.

The buyer will be required to give the Auctioneer authority to sign the Reservation Form on their behalf and to confirm acceptance of the Terms and Conditions prior to solicitors being instructed. Copies of the Reservation Form and all Terms and Conditions can be found in the Information Pack which can be downloaded from our website or requested from our Auctioneer.

Upon close of a successful auction, or if the vendor accepts an offer during the auction, the buyer will be required to make payment of a non-refundable Buyer's Premium of £6,582 including VAT, plus a buyer's administration charge of £372 including VAT, a total of £6,954. This secures the transaction and takes the property off the market. Any additional fees and charges over and above this will be confirmed within the terms and conditions available on the website.

The Buyer's Premium and buyer's administration charge are in addition to the final negotiated selling price.

All buyers will be required to verify their identity and provide proof of how the purchase will be funded.

Buyer's Administration Charge

If the Buyer Information Pack has been produced and provided by GOTO Group any successful purchaser will be required to pay £372 (including VAT) towards the cost of the preparation of the pack. These can then be used by your solicitor to progress the sale.

Buyer Fees

There are no other fees or charges payable to the Auctioneer however, there are other costs to consider such as:

  • You will need a Solicitor to act for you during the conveyancing and your Solicitor will advise you in relation to the associated costs. If you do not have a Solicitor, we can recommend the services of one of our Panel Solicitors who are all selected for their expertise in Auction Transactions. Please call the number below for more information.
  • Stamp Duty Land Tax (SDLT) is applicable if you buy a property or land over a certain price in England, Wales or Northern Ireland. Please click here for more information.

Energy Performance Certificate(EPCs)

An EPC is broadly like the labels provided with domestic appliances such as refrigerators and washing machines.Its purpose is to record how energy efficient a property is as a building. The certificate will provide a rating of the energy efficiency and carbon emissions of a building from A to G, where A is very efficient, and G is inefficient.The data required to allow the calculation of an EPC includes the age and construction of the building, its insulation and heating method.EPCs are produced using standard methods with standard assumptions about energy usage so that the energy efficiency of one building can easily be compared with another building of the same type.The Energy Performance of Buildings Directive (EPBD) requires that all buildings have an EPC when they are marketed for sale or for let, or when houses are newly built. EPCs are valid for 10 years, or until a newer EPC is prepared.During this period the EPC may be made available to buyers or new tenants.

* Generally speaking Guide Prices are provided as an indication of each seller's minimum expectation, i.e. 'The Reserve'. They are not necessarily figures which a property will sell for and may change at any time prior to the auction. Virtually every property will be offered subject to a Reserve (a figure below which the Auctioneer cannot sell the property during the auction) which we expect will be set within the Guide Range or no more than 10% above a single figure Guide.

Loading the bidding panel...

Office Contact

GOTO GROUP
01844355024

Additional Documents

Online Auction Buying Guide

Related Documents

Agreement Documents

Share